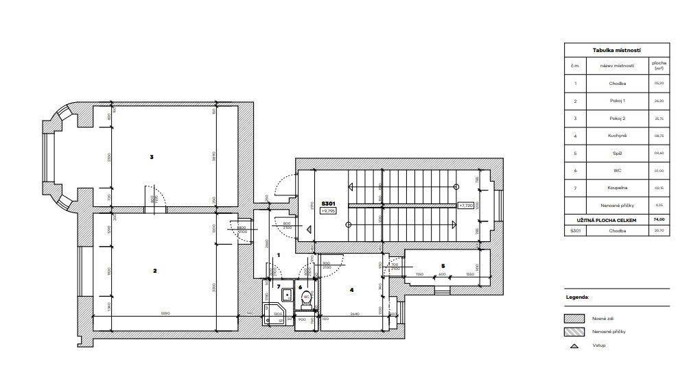
V přímém zastoupení developera si vám dovolujeme nabídnout krásný, prostorný byt 2+1 o celkové podlahové ploše 76 m² ve 3. nadzemním podlaží s balkonem. Byt je součástí cihlového domu, který prošel kompletní rekonstrukcí, a nabízí moderní a komfortní bydlení. Byt nabízí praktické řešení, které zahrnuje prostorný obývací pokoj, samostatnou kuchyň se spíží; kuchyň je vybavena spotřebiči (trouba s varnou deskou, myčka), ložnici, koupelnu s vanou a WC a komoru. Všechny místnosti jsou světlé a nabízejí dostatek prostoru pro pohodlné bydlení. Developer vyměnil veškeré rozvody elektřiny, vody i odpadu, položil nové podlahy a dlažbu, koupelnu s velkoformátovým obkladem, kuchyňskou linku na míru s vestavěnými spotřebiči, bezpečnostní dveře, videotelefon a optický internet. K bytu patří sklepní koje. Součástí prodeje je také možnost uzavření management contractu – zajišťujeme kompletní rental management pro klienty, kteří hledají investiční nemovitost a chtějí dosáhnout co nejvyššího výnosu z pronájmu. Nabízíme kupujícím jedinečnou možnost financování formou odložené splatnosti až 90 % kupní ceny. Nemusíte mít ihned k dispozici celou kupní cenu. Byt si můžete okamžitě převést do osobního vlastnictví a následně si zajistit klasické bankovní financování (hypotéku nebo úvěr). Tato nabídka je skvělým řešením zejména pro ty, kteří chtějí byt ihned, ale potřebují více času na zajištění financování, nebo mají dočasně vázané vlastní prostředky, které uvolní až později. Pro více informací o nemovitosti i financování nás neváhejte kontaktovat.
Další informace
4 399 000 Kč za nemovitost
Provize 1,5% + DPH
|
Call Centrum CAPITAL Trust, a.s |
| 775560871 assistant@cinzovnidomy.cz |






