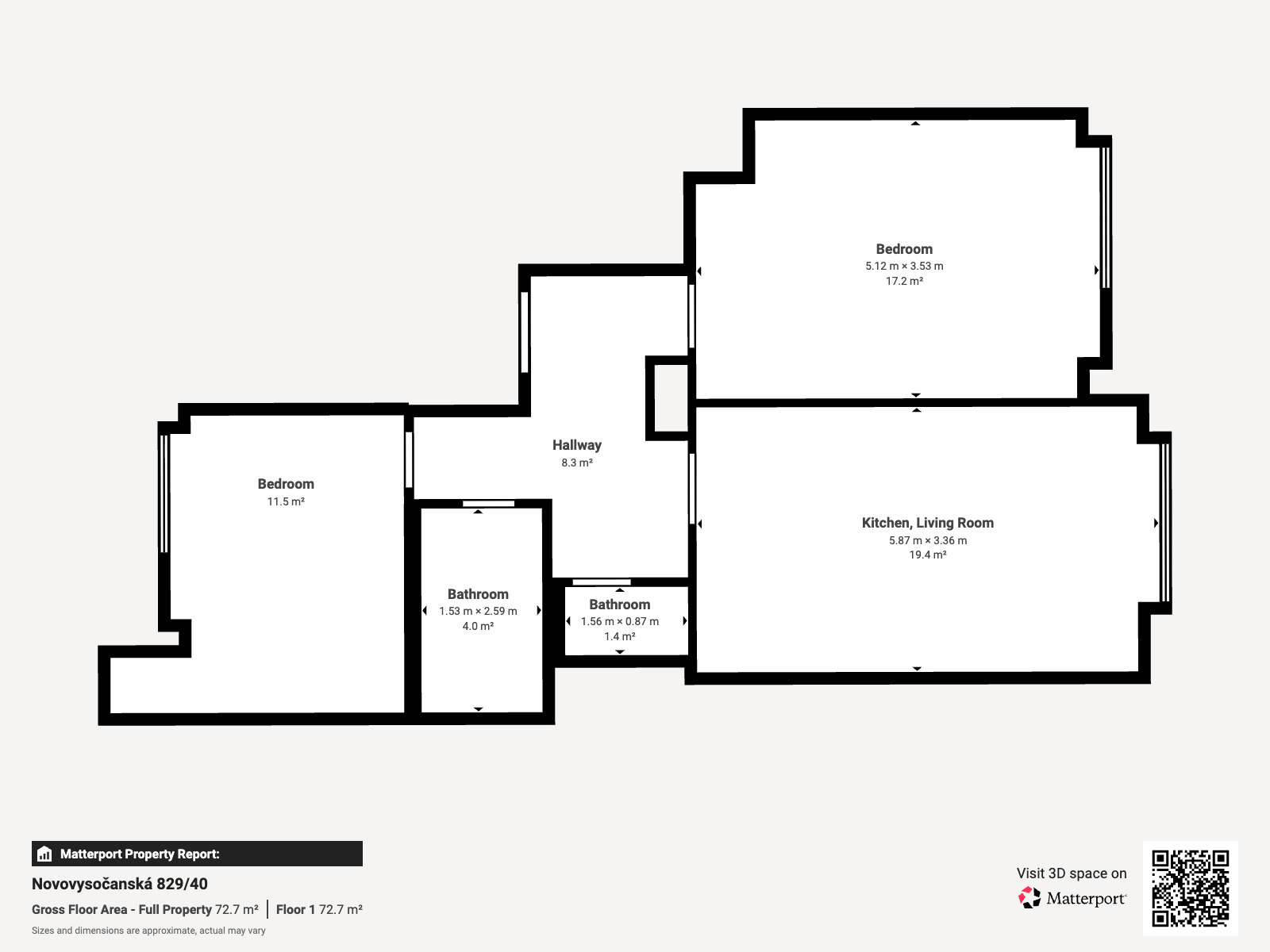
Nabízíme na prodej byt 3+kk o velikosti 73 m², včetně dvou lodžii, ve 3. nadzemním podlaží cihlového domu v Praze 9 – Vysočany, na adrese Novovysočanská 40. Dispozice bytu: předsíň, koupelna, samostatné WC, komora, ložnice a obývací pokoj s kuchyňským koutem. Byt prošel kompletní rekonstrukcí, která zahrnuje: - kompletní výměnu elektroinstalace - novou kuchyňskou linku se spotřebiči (myčka, sklokeramická varná deska, trouba, digestoř) - kompletní rekonstrukci koupelny a samostatného WC včetně moderní walk-in sprchy - chytré elektrické olejové radiátory IQ Line OIL WiFi – ovládání přes mobilní aplikaci, týdenní programování a přesná regulace teploty - nový bojler na ohřev vody Ariston Velis PRO WiFi 100 EU s možností vzdáleného ovládání přes aplikaci - nové vinylové podlahy – vyznačují se vynikající rozměrovou stabilitou, voděodolností a snadnou údržbou Lokalita Novovysočanská v Praze 9 patří mezi klidné a rozvíjející se rezidenční čtvrti s výbornou dopravní dostupností. V bezprostřední blízkosti se nachází zastávka tramvaje Balabenka a stanice metra B – Českomoravská, odkud se dostanete do centra města během několika minut. Výborné je i napojení na vlakovou dopravu – nedaleko se nachází železniční stanice Praha-Vysočany. V docházkové vzdálenosti se také nachází oblíbené obchodní centrum Harfa s širokou nabídkou obchodů, restaurací a služeb pro každodenní život. Lokalita zažívá v posledních letech dynamický rozvoj, což z ní činí atraktivní volbu jak pro vlastní bydlení, tak jako investici do nemovitosti. Pokud vás byt zaujal, neváhejte nás kontaktovat – rádi domluvíme termín prohlídky.
Další informace
9 990 000 Kč za nemovitost
|
Call Centrum CAPITAL Trust, a.s |
| 775560871 assistant@cinzovnidomy.cz |





