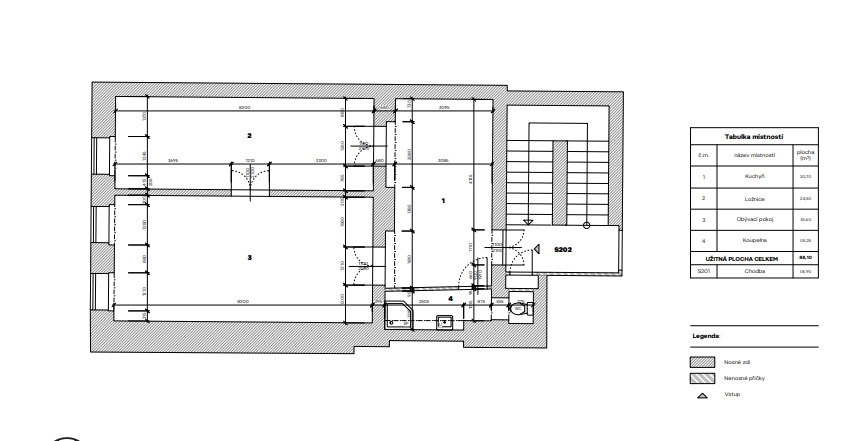
Nabízíme k pronájmu byt v nejžádanější lokalitě Hradce Králové, na Velkém náměstí, pouhých 20 metrů od katedrály, kde je jen zřídka příležitost sehnat nemovitost. Do domu vstoupíte impozantní chodbou s klenutými stropy, která navozuje jedinečnou atmosféru historické elegance. Byt je volný od 1.1.2026 Celková výměra jednotky činí 88,1 m2, dispozice 2+1. Byt je umístěn ve druhém nadzemním podlaží budovy. Jednotka je vybavena novou kuchyňskou linkou se spotřebiči – varná deska, trouba, lednička, myčka. Dům je již od r. 1958 zapsán v Památkovém katalogu Národního Památkového ústavu jako Kulturní památka ČR. Městský dům je typickou ukázkou měšťanské architektury z období, kdy byl Hradec Králové královským městem. Budova je součástí komplexu historických domů. Byty prošly v roce 2014 nákladnou kompletní rekonstrukcí, která zahrnovala modernizaci všech bytových i nebytových prostor. Jednotky jsou v dobrem stavu a postupně procházely dalšími úpravami – rekonstrukcemi rozvodů, podlah, omítek, koupelen, a také modernizací systémů vytápění a ohřevu vody. V r. 2025 došlo k nové rekonstrukci bytů a společných částí domu. Pronajímatel je připraven byt vybavit nábytkem dle přání nájemce. Obě obytné místnosti mají okna do Velkého náměstí, byt je velmi slunný. Byt si zachoval autentické historické prvky, včetně masivních dřevěných podlah, původních dveří a dřevěných zárubní. Impozantní jsou podlahy z původních dubových prken louhovaných v mořské vodě. Za domem najdete krásné terasy a zahradu, vhodné pro grilování s rodinou a přáteli. Parkování je možné přímo před budovou, zastávka MHD v těsné blízkosti. V domě se nachází i další byty různých dispozic na pronájem. Nájem: 19.999 Kč Služby: 4.000 Kč včetně elektřiny Provize: 19.999Kč + DPH Jistota jeden nebo dva měsíční nájmy
Další informace
19 999 Kč za měsíc
|
Call Centrum CAPITAL Trust, a.s . |
| 775560871 assistant@cinzovnidomy.cz |






